VENTA


CORRALEJO FV211
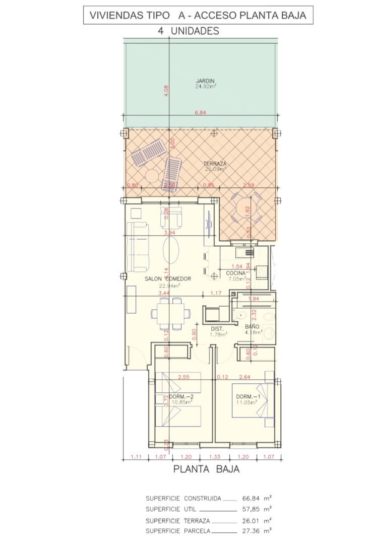
Tipo: PARCELA PROYECTO LICENCIA
Habitaciones: 1, 2 y 3
Baños:
Sup. Útil: 4.572m
Sup. Parcela: 6.439m

Descripción:
Parcela de 6.439 metros cuadrados de superficie, con proyecto y licencia  para la construcción  de 64 apartamentos de  uno, dos o tres dormitorios, con una superficie edificable de 4.572 metros cuadrados. Se encuentra situada en una  de las mejores zonas de Corralejo, por sus impresionantes vistas panorámicas. Dispone de amplia zona ajardinada y piscina.
3.360.000€